一、 产品概述
1、 MH型电动葫芦门式起重机与CD1、MD1等型号的电动葫芦配套使用,是一种有轨运行的中小型起重机。
2、 适用起重量3-16吨,适用跨度12-30米,工作环境-20℃- +40℃内。
3、 本产品为一般用途起重机,多用于露天场所及仓库的装卸或抓取物料。
4、 本产品有地面操纵和室内操纵两种形式。
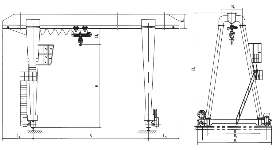
二、产品简图与技术规格(10t)







一、 产品概述
1、 MH型电动葫芦门式起重机与CD1、MD1等型号的电动葫芦配套使用,是一种有轨运行的中小型起重机。
2、 适用起重量3-16吨,适用跨度12-30米,工作环境-20℃- +40℃内。
3、 本产品为一般用途起重机,多用于露天场所及仓库的装卸或抓取物料。
4、 本产品有地面操纵和室内操纵两种形式。
二、产品简图与技术规格(10t)






